Tip 30

Tip 30 je model iz kategorije montažnih kuća manjih površina, do 50m2. Sastoji se iz dnevne sobe, spavaće sobe, kupatila i predsoblja.

34.93 m2

Bruto površina

30.91 m2

Neto površina

1

Broj etaža

3

Broj soba

IZGLED OBJEKTA

PROSTORNI PLAN

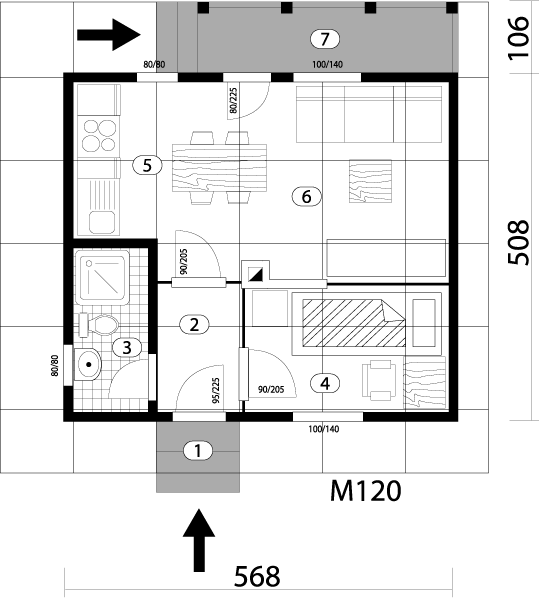
Raspored prostorija

Br.ProstorijaPovršina
1Ulaz1.57 m2
2Predsoblje2.16 m2
3Kupatilo2.64 m2
4Spavaća soba5.22 m2
5Kuhinja2.76 m2
6Dnevna soba12.04 m2
7Terasa4.52 m2

SIVA FAZA

17.750

KLJUČ U RUKE

26.700

Pošaljite zahtev za ponudu

1 Step 1
keyboard_arrow_leftPrevious
Nextkeyboard_arrow_right
FormCraft - WordPress form builder

Otkrijte još projekata