Tip 40

Tip 40 je model iz kategorije manjih površina, do 50m2. Sastoji se iz prostrane dnevne sobe, spavaće sobe, kupatila, predsoblja i terase.

44.24 m2

Bruto površina

39.26 m2

Neto površina

1

Broj etaža

3

Broj soba

IZGLED OBJEKTA

PROSTORNI PLAN

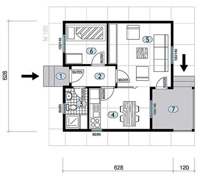
Raspored prostorija

Br.ProstorijaPovršina
1Ulaz1.9 m2
2Predsoblje3.12 m2
3Kupatilo2.76 m2
4Kuhinja8.08 m2
5Dnevna soba11.95 m2
6Terasa5.92 m2

SIVA FAZA

17.540,00

KLJUČ U RUKE

28.400,00

Pošaljite zahtev za ponudu

1 Step 1
keyboard_arrow_leftPrevious
Nextkeyboard_arrow_right
FormCraft - WordPress form builder

Otkrijte još projekata