Tip 44b

Tip 44b je model iz kategorije manjih površina, do 50m2. Sastoji se iz prostrane dnevne sobe, prostrane spavaće sobe, kupatila, predsoblja i terase.

50.38 m2

Bruto površina

45.46 m2

Neto površina

1

Broj etaža

3

Broj soba

IZGLED OBJEKTA

PROSTORNI PLAN

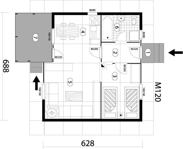
Raspored prostorija

Br.ProstorijaPovršina
1Ulaz2.02 m2
2Predsoblje2.40 m2
3Spavaća soba8.26 m2
4Kuhinja8.70 m2
5Dnevna soba12.60 m2
6Kupatilo4.08 m2
7Terasa7.40 m2

SIVA FAZA

18.290,00

KLJUČ U RUKE

30.580,00

Pošaljite zahtev za ponudu

1 Step 1
keyboard_arrow_leftPrevious
Nextkeyboard_arrow_right
FormCraft - WordPress form builder

Otkrijte još projekata