Tip Golija 30

Montažna planinska kuća Tip Golija 30 je idealno resenje za vašu vikendicu ili kućicu pored jezera. Odlikuju je 2 spavaće sobe i prostran dnevni boravak.

55.12 m2

Bruto površina

47.77 m2

Neto površina

2

Broj etaža

4

Broj soba

IZGLED OBJEKTA

PROSTORNI PLAN

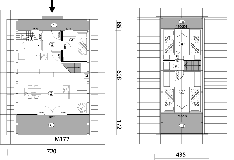
Raspored prostorija

Br.ProstorijaPovršina
1Terasa6.34 m2
2Predsoblje6.48 m2
3Kupatilo3.95 m2
4Spavaća soba6.05 m2
5Dnevna soba25.79 m2
6Terasa11.19 m2
7Spavaća soba13.03 m2
8Spavaća soba9.67 m2
9Lođa3.47 m2
10Lodja6.83 m2

Pošaljite zahtev za ponudu

1 Step 1
keyboard_arrow_leftPrevious
Nextkeyboard_arrow_right
FormCraft - WordPress form builder

Otkrijte još projekata